- 戸建て
桜ヶ丘モデルハウス
After
Point
-
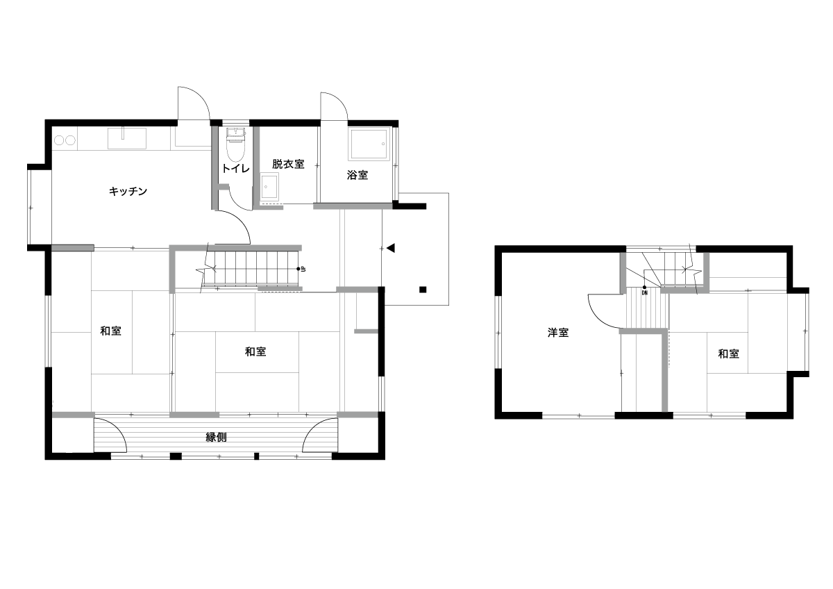
家事がスムーズになる使いやすいキッチン
キッチンは大胆に移動させて、キッチンまわりをぐるりと回遊できる家事ラク動線に。すぐに物を取れる便利な背面収納やパントリー、食洗機、節湯水栓もついて便利になりました。 キッチンの隣に新たに設けた家事スペースは、明るいお庭を見ながらちょっとした書き物や読書タイムにおすすめです。
-
可変性を施したフリールーム
ライフスタイルの変化に対応できる「可変性」を施した2階のフリールーム。将来は仕切って2部屋にすることも可能。世代を超えて住み継ぐことのできる仕様です。
-
断熱リフォームで暖かくなった洗面と浴室
しっかりと断熱工事をして、広さと暖かさを兼ねた脱衣所・浴室は入浴時のヒートショックの心配も少なくなりました。毎日使う水まわり設備は、最新型を取り入れています。

性能向上により裸足で歩きたくなる住まい
建物の老朽化に伴い、耐震性の不安や夏の暑さ冬の寒さなど、さまざまなお悩みが気になってくるものです。また、子育て真っ只中の暮らしと子どもたちが巣立った後の暮らしは大きく変わります。こうした住まいのお悩みを解決し、ライフステージに合わせた快適な暮らしを実現できるのがリノベーションです。
外観は、浴室東側を少し減築してスッキリした形状に変えて、外壁の配色も白基調から濃いグレイ基調に。元々持っていた和のイメージを活かしつつ、あたたかい木目をアクセントに用いて上品にまとめています。
暗かった和室を広々としたLDKに。中心にオープンな階段を配置して、2階を含めて一体感のある空間としました。
床材や住宅設備の多くはヤマサハウスの新築と同じ仕様で、まるで新築のように暮らせます。また、無垢材をふんだんに使い、帰るたびに深呼吸して裸足で歩きたくなる心地よさです。
このモデルハウスで実現できる暮らし
築30年以上経った戸建ては何もしなければ老朽化が進み、耐震性の不安や冬の寒さ、夏の暑さなど、さまざまなお悩みが生じます。
桜ヶ丘モデルハウスは、子どもたちが巣立った後のご夫婦の暮らしを想定してリノベーションした住まいです。性能面の補強によって冬は暖かく夏は涼しく快適に、耐震性の不安も解消されています。
広くて明るいリビングや家事動線にこだわったキッチン、健康面でも安心な冬も暖かい洗面脱衣室など、ご夫婦2人が快適に暮らせる間取りに変更。2階の子ども部屋はフリースペースに。外観、内観ともに〝新築以上”を実現しました。
Voice
担当者からのコメント
性能向上を最優先にしながらも、意匠性も高い住まいとなりました。
断熱工事・耐震工事をしっかりと行っており、長期優良住宅の認定も取得しています。