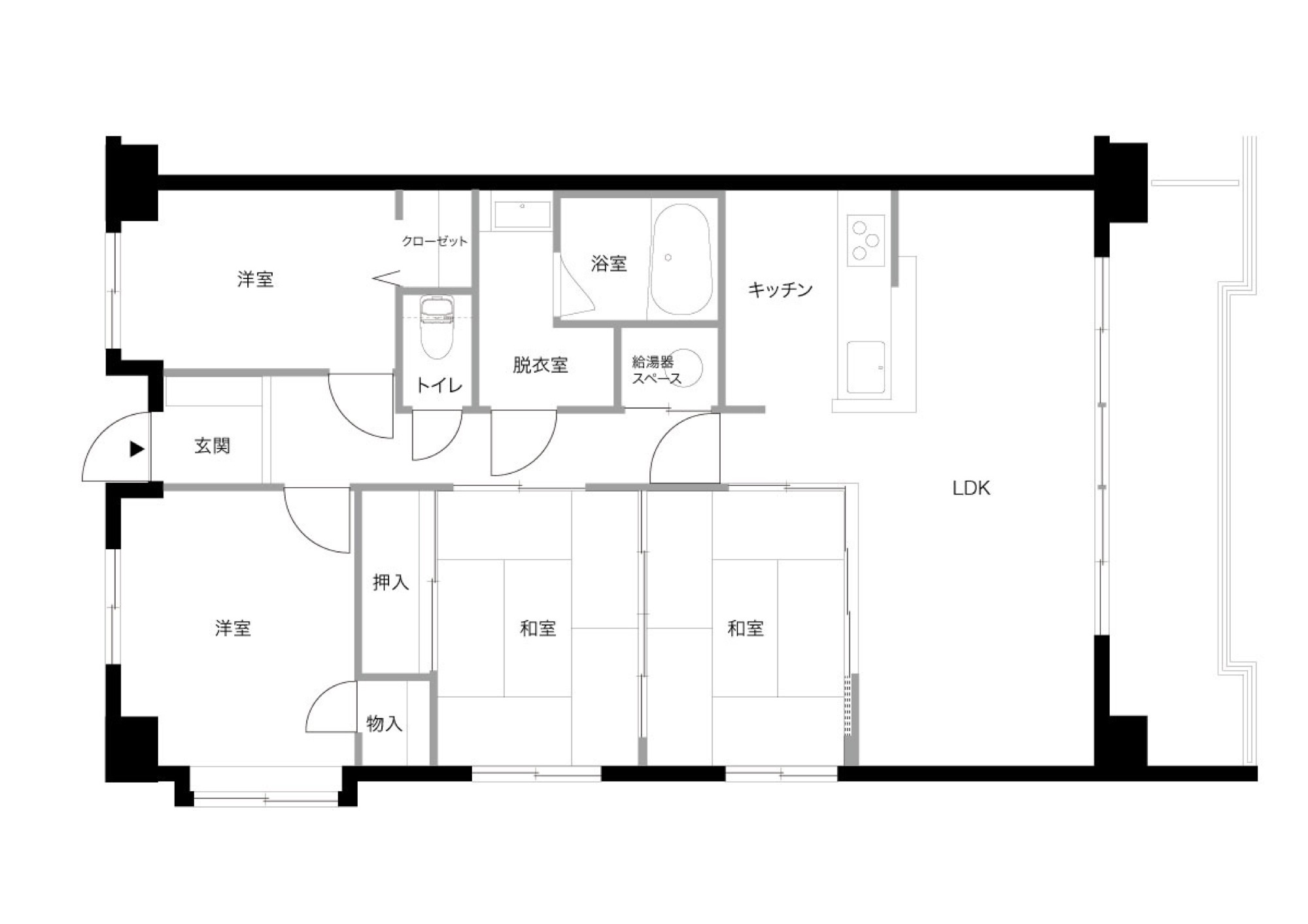
築30年 4LDK→3LDK+WIC 78.31㎡ 鹿児島市
  • マンション

慈眼寺モデルルーム~南向きリビングと利便性の高い立地が叶える快適な日常~

After

Point

  • 自然光がたっぷり差し込む南向きのLDK

    大きな窓から陽光が降り注ぐ南向きのLDKは、明るく開放感あふれる空間に。床には、自然の風合いを感じられる無垢材を採用し、ぬくもりと落ち着きのある雰囲気を演出しています。家族が自然と集い、ゆったりとくつろげる心地よいリビングが広がります。

  • 家事の負担を減らす大容量のウォークインクローゼット

    家族全員の衣類はもちろん、季節用品などもしっかり収納できるゆとりのある空間。家事動線にも配慮し、家族分の洗濯物をまとめて収納できるため、日々の家事負担を軽減します。

  • 利便性の高い立地と南向きの開放的な眺望

    リビングに面した南向きのバルコニーからは、視界が広がる開けた眺望を楽しめます。周辺環境も充実しており、鹿児島市谷山支所や谷山小学校・中学校までは徒歩15分圏内。スーパーへは徒歩1分、銀行や病院へも徒歩3分、さらにイオンモールへも車で約11分と、利便性の高い住環境が整っています。

細かく仕切られた4LDKの間取りを、ゆとりある3LDK+ウォークインクローゼットへと大胆にリノベーション。それぞれの居室をしっかり確保しながら、収納力も大幅にアップしました。
住まいの中心となる南向きのリビングには、たっぷりと自然光が差し込み、無垢材の床がやさしいぬくもりを添えます。さらに、各居室やウォークインクローゼットにも無垢材を用いており、素足でも心地よく過ごせる、落ち着きのある空間が広がります。

ウォークインクローゼットは、衣類だけでなく季節用品やかさばる荷物までしっかり収納できる頼もしい存在。暮らしの動線にもこだわり、日常の動きがスムーズになるよう設計されています。
さらに、オール電化仕様へ切り替え、電気温水器からエコキュートに交換したことで、省エネとランニングコストの削減も実現。家計への負担を減らし、将来まで安心して快適に暮らせます。
また、立地も魅力のひとつ。鹿児島市谷山支所や谷山小学校・谷山中学校までは徒歩15分圏内。スーパーまでは徒歩1分、銀行や病院へは徒歩3分、イオンモールへも車で約11分と、子育て世代にもうれしい利便性の高い住環境です。

担当者のコメント

立地の良さに加え、広々としたLDKやウォークインクローゼット、ファミリーに適した間取りを備えています。内装はどんな家具にも合わせやすいシンプルなデザインで、住宅設備も使いやすくお手入れが簡単です。周辺にはスーパーや人気のパン屋をはじめ魅力的なお店が揃い、日々の暮らしを飽きることなく楽しめる住まいです。

Movie


Recent Case最新の施工事例