- 戸建て
在宅ワーク・家事の効率UPのために
After
Point
-
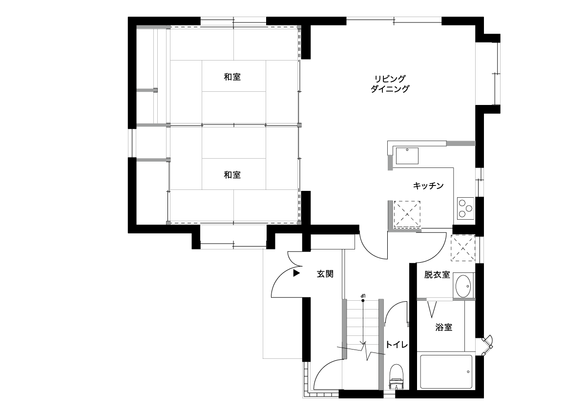
家事効率が良くなるキッチン
家族の顔を見える対面式のオープンキッチンを採用。広い作業スペースや背面収納によって使いやすく便利になりました。家族とのコミュニケーションを楽しみながら家事が効率良く進められます。
-
仕事や家事が捗る充実の空間
LDKの続き間に在宅ワークスペースを設けました。また、趣味の裁縫や家事を楽しむための場所も設置。元々の和の雰囲気を活かしつつ、一体感のある空間としています。扉を閉めると、個室としても利用できます。
-
DIYも取り入れた玄関土間
玄関ドアの交換、フローリングや階段手摺の上壁はヤマサリノベで施工、土間の床材はお施主様がDIYで仕上げました。広い土間スペースは、ベビーカーやおもちゃ、アウトドア用品などの収納場所としても活躍します。

住んでからも進化し続ける余白のあるリノベーション
お子様が大きくなるにつれて、賃貸アパートの狭さや夏の暑さ冬の寒さが気になっていたご家族。ご実家近くで子育てがしやすい環境を維持しながら暮らせるように、リノベーションができる中古物件を探していました。
ヤマサリノベを選んだ理由は、「フラット35リノベ」の実績があったこと。営業担当者の分かりやすい話し方や人柄、整備された現場に信頼感を持てたことも決め手でした。
まずは、メインで使う1階部分のみをリノベーション。広い土間のある玄関や対面式のキッチンを配置した明るく開放的なLDK、在宅ワークスペースなど、毎日の暮らしにゆとりが生まれる間取りを実現。あとから自分たちでDIYも楽しめるように、余白のある計画としました。
担当者からのコメント
DIYがとても得意でパワフルなお施主様。やりたいことも明確で、どこに力を入れて、どこまで自分達でDIYして、を整理しながら計画をたてました。
元々は広々とした和室をあえて仕切ることで、使い勝手の良い、ライフスタイルに合った住まいに変化しました。
完成後も訪問するたびに進化し続けています。楽しく暮らしていらっしゃる様子が伝わってきて、とても嬉しく思っています。今後の変化も楽しみにしています!
Voice
家事や仕事、趣味と暮らしの楽しみが増えました
子どもが大きくなるにつれて、賃貸アパートが手狭に感じるようになっていました。冬の寒さや夏の暑さも悩みでした。
実家の近くで手頃な物件がないか探していたところ、リノベーションの実績が豊富で物件探しからサポートがあるヤマサリノベさんを知り、お願いすることにしました。
物件購入の面倒な手続きからはじまり、限られた予算の中での提案、後からDIYがしやすくなるためのひと工夫など、何でも相談に乗ってくれて細部にわたり細やかな気配りをしてくれました。
リノベーション後は、冬は暖かく夏は涼しく快適になったのはもちろんですが、家事や仕事がしやすくなり、毎日の暮らしにゆとりが生まれました。とても満足しています。