- マンション
家族が成長しても変わらず集まるように
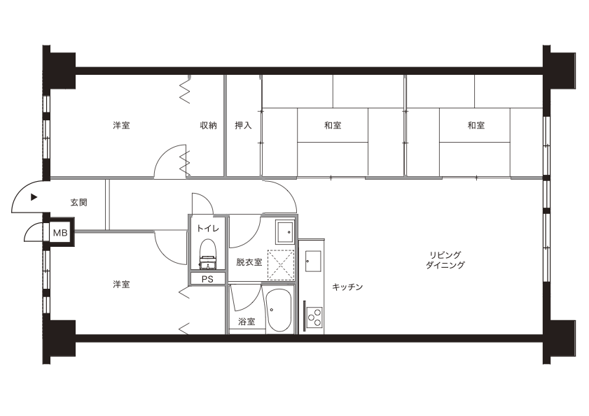
After
Point
-
家族が自然と集まるリビング
どの部屋からもアクセスしやすく、家族が自然と集まる配置。足触りが心地よい無垢床を全体に施してナチュラルな雰囲気に仕上げました。木の素材がシンプルなインテリアを引き立てています。
-
たっぷりの収納がある玄関土間
窓から明るい光を取り込む広々とした空間。靴だけでなくアウトドア用品や自転車もしまえるたっぷりの収納スペースを設けました。小上がりにした隣の寝室下も収納として活用。寝室にも明かりが入るように壁の上部に室内窓も設置しました。
-
家族の気配を感じられる子ども部屋
リビングの一角に子ども部屋をつくりました。スタディスペースはリビングから目が届く場所に配置。キッチン側の壁にはガラスの窓を、リビング側にはガラスの扉を設けて、家族がお互いの気配を感じられるようにしました。

家族の“大好き”をカタチに
社宅を出て持ち家の購入を検討していたご家族。立地や将来の住み替えの可能性を考えて、マンションを探していました。新築マンションは気に入る間取りのものがなく、中古マンションを購入して好みの間取りにリノベーションをすることにしました。
ヤマサリノベを選んだ決め手は、モデルハウスや見学会の雰囲気が良かったことに加えて、信頼できる担当者との出会いがあったことでした。
キッチン中心に脱衣所・お風呂・WIC を回遊できる家事楽動線、開放的な玄関、小あがり下の収納など、リノベーションで家族の“大好き”をカタチに。子ども部屋もリビングの一角に配置して、ガラスの三枚戸で圧迫感なくリビングを仕切りました。いつまでも、自然に家族みんなが集まっているリビングを目指しました。
担当者からのコメント
あそこのお店の雰囲気で…!など、なりたいイメージが固まっており、それをひとつずつまとめて形にしていきました。悩むことが出てきても、ご夫婦できちんと結論を出すことのできる穏やかで素敵なご夫婦で、住まい方にもお人柄が出ているのでしょう、完成後にいつ伺ってもとても居心地がよく、どこにいてもほっとする住まいだと感じます。
Movie
Voice
家族が自然と集まり一緒にいる時間が増えました
住みやすい立地で、自分が希望するリノベーション、間取りになって満足しています。家の中が快適になったことはもちろんですが、家族みんなが自然と集まる空間ができて、家族で過ごす時間が増えました。