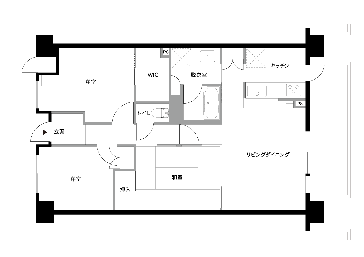
築20年 3LDK→1LDK 70.20㎡ 鹿児島市
  • マンション

2人の思い出を日常に散りばめて

After

Before

Point

  • “好き”を楽しむヴィンテージな空間

    手持ちの家具が調和するヴィンテージな空間。見せる収納と隠す収納を上手に使い分けて、ご夫婦の“好きなもの”を散りばめました。

  • インテリアにもなるレコード

    玄関からLDKまでの廊下の壁にレコードを飾る場所をつくりました。たくさんのコレクションの中からその時々で飾るレコードを選ぶのも楽しみの1つに。

  • お気に入りを並べた寝室の飾り棚

    寝室に設けた飾り棚は、お気に入りのアイテムを並べる場所に。目覚めた瞬間から眠りにつく直前まで目に入るものは“好きなもの”ばかり。

好きなものと大切な思い出に目に届く暮らし

退職を目前にして水まわりのリフォームを検討されていましたが、より使いやすい間取りに変更したいと全面的にリノベーションすることとなりました。
ヤマサリノベを選んだ理由は、住む人の目線に立った間取りの提案やスタッフの親切丁寧な対応に信頼してお願いできそうだと感じたから。
当初の目的であった洗面台や浴室といった水まわり設備も新しくなったことはもちろん、ご夫婦でゆっくりとくつろげる広々としたLDK、自転車も置ける明るく開放的な玄関、好きなものが随所に散りばめられた空間など、「好きなものを目が届くところに置いて大切に眺めて暮らしたい」というご夫婦のご要望をカタチに。今もこの先も大切な思い出に包まれながら彩り豊かな日々を楽しめる住まいが完成しました。

担当者からのコメント

思い出を大切にされているご夫婦。ひとつひとつの素材をしっかり吟味して丁寧に選ばれており、宝物を散りばめた、居心地のよい素敵な住まいとなりました。

Voice

センスの良い提案で満足の住まいができました!

この度は素晴らしいチームワークで満足のいくリノベーションとなりました。面白くて楽しい、話しやすく何でもお願いできる営業さん、センス抜群のデザイナーさん、イケメンなのにアツくて何でも相談できる現場監督さん、ありがとうございました。
こちらの理想と予算を的確に把握して最適な仕様・器具等を提案していただいたので、あまり迷ったりすることもなく、打合せも毎回楽しく行うことができました。急な要望やトラブルに関しても迅速に対応していただき、感謝しています。


Recent Case最新の施工事例