- 戸建て
懐かしさと新しい快適さをあわせ持つ
After
Point
-
玄関は充実の収納を確保
玄関はシューズクロークと広い土間を確保して、使い勝手を良くしました。
-
家族の顔が見えるキッチン
家族に背を向けて料理していたキッチンは家族の顔が見える対面キッチンへ。豊富な収納も確保しました。
-
心身を回復させる場所
和室だった寝室は、明るい洋間へ。夜勤のある生活で疲れた体をゆっくりと休められます。
お祖父様から譲り受けた築40年以上の住まいをリノベーションしたご家族。思い入れのある住まいだったため、家族の思い出は大切に残したいと思い、住みやすくリノベーションすることにしました。
ヤマサリノベを選んだ理由は、古い木造の家だったので木に詳しい会社にお願いしたいと思ったからです。耐震工事ができることや補助金を利用できる点も決め手となり、リノベーションがスタートしました。
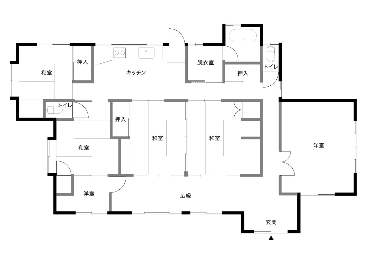
縁側や欄間、和室など残したいところは残し、以前の趣はそのままに。特にお祖父様のこだわりが詰まったゆずの木の床材を使った縁側はきれいに補修をして、庭側にテラスを設けました。新しい杉の無垢フローリングのLDKを中心に、趣味の部屋や豊富な収納なども確保しました。
生活時間帯が異なるご夫婦が、家族の時間も、それぞれのプライベートも大切にできる住まいとなりました。
担当者のコメント

自分たちらしいスタイルをお持ちだったご夫婦。それぞれのライフスタイルを大切にした暮らしやすく意匠性も高い住まいとなりました。
また、耐震工事を行うことを条件としたリノベーション補助金を利用して、性能向上も行いました。
今までの思い出も大切に、古き良きものと新しいものが融合した、リノベの醍醐味を最大限に味わう素敵な住まいになりました。
Movie
Voice
「あの古い家がこんなに素敵に変わるんだ!」と驚きがいっぱいです。
築40年の家を住みやすい間取りと環境にしていただきました。プロの視点でさまざまな提案をしてもらえてよかったです。
雨漏りでボロボロだった縁側もキレイになったのには驚きました。懐かしさも感じつつ、新しい快適さもあり、「あの古い家がこんなに素敵に変わるんだ」と驚きがいっぱいです。想像以上に良い家になり大満足です。
インテリアについても色の選び方、物の選び方たくさんのアイデアをもらって勉強になりました。細かいところにも気配りを感じました。