築33年 4LDK→3LDK 118.45㎡ 薩摩川内市
  • 戸建て

生まれ育った家を二世帯住宅へ

After

Point

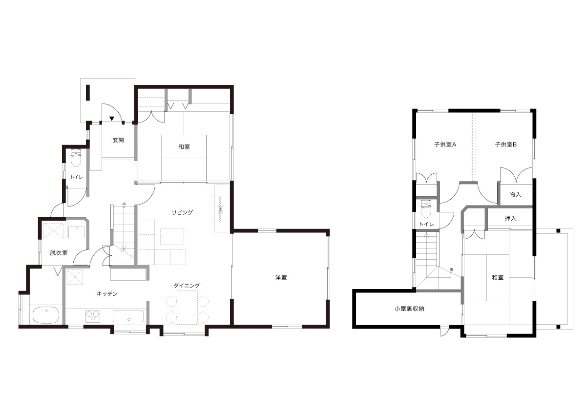
  • 階段とピクチャーレール

    玄関近くにあった階段をLDKの真ん中に移動。緩やかになった階段横にはスタディースペースも。その壁にはピクチャーレールを設置。写真や保育園からのお便り、お子様が作った作品などを飾っています。

  • キッチンと水廻りを繋ぐ回遊動線

    LDK、パントリー、脱衣室、洗面コーナーを回遊でき、家事効率の良い動線に。キッチンは3口のIHコンロが横並びで使いやすいパナソニック製品を採用。

  • お母様の部屋はあえて2階に

    お元気なお母様の個室は定番の1階ではなく2階を提案。横長の窓は花火や電車など景色がよく見え、小さなお孫様たちにも安心の高さに配置しました。

以前のアパート住まいが手狭になり、お子様の小学校入学を前に家づくりを検討していたご家族。一人暮らしのお母様が心配だったこともあり、将来を見据えて築年数が経ったご主人のご実家を二世帯住宅にリノベーションすることにしました。
ヤマサハウスを選んだ理由は、ご実家が33年前にヤマハサウスで建てた住まいだったこと。また、私道である前面道路の複雑な権利関係の整理を担当スタッフが丁寧に根気強く対応してくれたことも決め手となりました。

1階は、家事がしやすく、お子様たちがのびのびと過ごせるように回遊動線のある間取りに。階段は玄関近くからリビング内に配置を変更して傾斜を緩やかにしたことで、負担が少なく安全に昇降できるようにしました。
また、インテリアは北欧風を取り入れた爽やかなテイストにコーディネート。寒さ、暑さのお悩みを解消するための断熱リノベーションも行いました。
二世帯が「それぞれ快適に過ごせる住まい」をコンセプトに、家族みんながのびのびと暮らせる住まいが完成しました。

担当者のコメント

ご要望をはっきりお伝えくださったので、提案もしやすく、より良いリノベーションを実現することができました。
築33年の当社の家は、他社に比べとてもしっかりした造りでしたが、それでもリノベーション前は冬がとても寒いとお悩みでした。今回、最新の断熱工事をしっかり行い、リノベーション後は「比べられないほど冬でも暖かかったです!」と丁寧にご感想をいただき、とても嬉しく思いました。
3世代とても仲の良いご家族の家づくりに携われて、本当に光栄でした。

Movie

Voice

未来も楽しみになる二世帯住宅になりました!

キッチンには自分たち夫婦と母の3人全員が立ちますが、広くなり動線も良くなったのでストレスがなくなりました。また、LDKの中に階段を配置したことで、子どもたちが大きくなった時も顔を合わせることができる間取りになり安心です。階段の傾斜が緩やかなので、上り下りもスムーズですね。
一人暮らしが長かった母は、「息子夫婦や孫たちを手助けできるのがうれしい」と話しています。これからも家族みんなで楽しく暮らしていきたいです。夏は庭で花火やバーベキューも楽しみたいですね。


Recent Case最新の施工事例