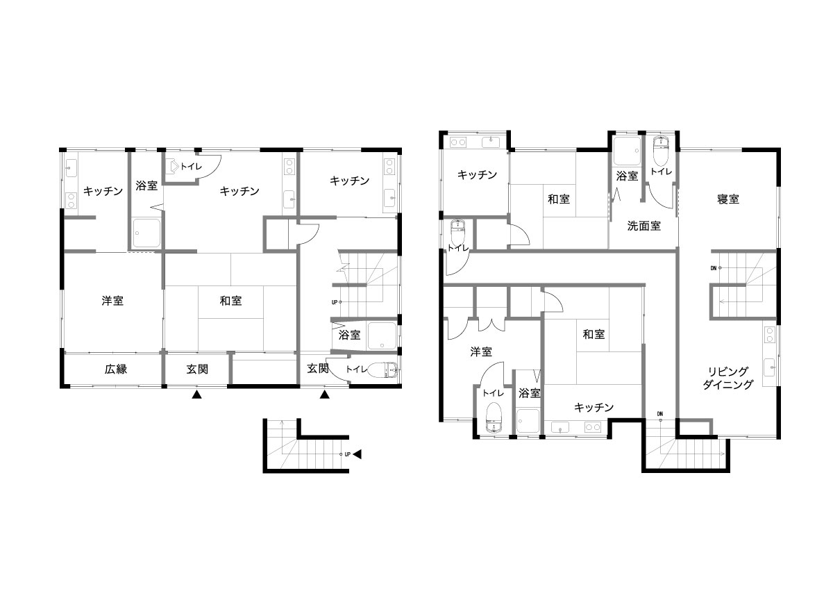
60年 共同住宅→2LDK+1LDK  121.83㎡ 鹿児島市
  • 古民家
  • 戸建て

再建不可!二世帯リノベに

After

Point

  • 新築同様の外観

    屋根と外壁を新しくして新築同様の外観に。昔ながらの長屋を思わせる佇まいに仕上げました。

  • 将来は2部屋に仕切れる子ども部屋

    今はフリースペースとして広く使えるように、子どもたちが成長して個室が必要になったタイミングで2部屋に仕切れるように可変性を持たせました。

  • それぞれの好みを尊重した配色に

    奥様の好みのカラフルな色味に、2人の息子様のご要望も取り入れて、パステルカラーの壁紙や深みのあるグリーンのタイルを採用しました。

ご両親と同居していた築60年以上のご実家をリノベーションしたご家族。建物の老朽化により隙間風や雨漏りなど、さまざまなお悩みが生じていました。法的に建て替えができない場所だったため、フルリノベーションにより安全で快適に暮らせるようにしました。
高いリノベーション技術と豊富な実績、木の温もりを感じるあたたかみのある空間が決め手となり、ヤマサリノベに依頼することにしました。
家事や子育てがしやすい間取りや動線、2人の子どもたちのための子ども部屋、長く安心して暮らせる高い耐震性など、1階と2階で親世帯と子世帯の住まいを分けることで、それぞれの暮らしを大切にできるようにしました。
不便でも愛着のあった住まいを壊すことなく、家族が安心・安全に暮らせる住まいへと生まれ変わりました。

担当者のコメント

リノベーションは解体してみないと分からない部分もあります。こちらのお客様も解体してから扉や照明が決めていた位置に収まらないことが判明して、調整を図りながら工事を進めて行きました。
お子様がいるご家庭だったので、家事・育児がしやすく、先々まで安全に暮らせるように耐震補強の工事も行いました。
お客様の想いが詰まった住まいが完成しました。

Movie

Voice

同じ場所なのに静かにリラックスして暮らせるようになりました!

営業、設計、現場、インテリアコーディネーターの皆さんが親身になって話を聞いてくれたので、安心してリノベーションを進めることができました。
以前はバスなどが通ると揺れていましたが、耐震補強工事を行ってからは一切揺れなくなりました。とても静かな環境の中で家族でリラックスして暮らせています。
長年住んでいた愛着のある空間を崩すことに寂しさもありましたが、新たに生まれ変わった住まいに暮らしてみると、リノベーションをして本当に良かったと感じています。


Recent Case最新の施工事例