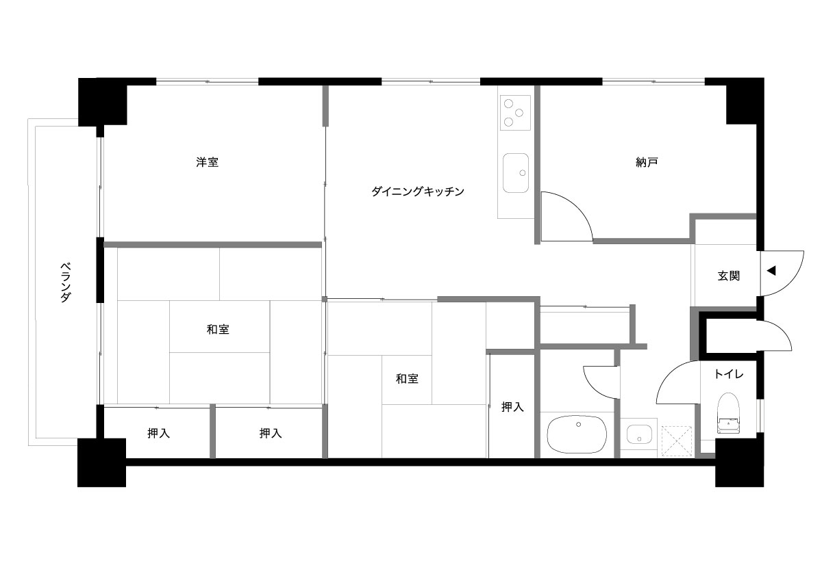
築43年 4DK→1LDK 65.75㎡ 鹿児島市
  • マンション

遊びゴコロを詰め込んだMIXスタイルな空間

After

Point

  • 広い土間と一体型のWIC

    玄関は広々とした土間のある空間に。ウォークインクローゼットと一体型にしたことで使い勝手が良くなりました。

  • 好きなお店の雰囲気が日常に

    通常よりもキッチンの高さを高くしてカウンターを造作。料理をしながらLDK全体が見える配置で、子どもたちの様子にも目が届きます。

  • 多用途に使える窓辺のベンチ

    やわらかな日差しが降り注ぐ心地よい場所。ベンチだけでなく、お子様の机や本棚としても活躍します。家族のコミュニケーションの機会も増えそうです。

「郊外の戸建てよりも、街の中で便利な暮らしがしたい!」と、中古マンションを購入してリノベーションしたご家族。
リノベーション会社を検討する中で、ヤマサリノベのスタッフの人柄が一番自分たちに合っていると感じ、物件探しからリノベーションまでヤマサリノベに依頼することにしました。

壁と天井は躯体現しにしてラフな雰囲気に。以前の壁を解体したときに出てきたボンドの後である白い模様は、そのままデザインとして活かし、カッコ良さと遊びゴコロを両立させました。
特に大事にしたのはバーやショップをイメージしたキッチンのステンレスカウンター。男性でも使いやすい高さのキッチンは、部屋全体が見える配置で、お子様の様子にも目が届くように。ほかにも広い土間と一体型のウォークインクローゼットや窓辺のベンチ、丁寧に配色した素材など、ご家族の”好き”をたくさん詰め込んだ唯一無二の素敵な住まいが完成しました。

担当者のコメント

物件探しからリノベーションまでお手伝いさせていただきました。 「こういう風にしたい!」というご希望をしっかりお持ちだったので、それを実現できるようにご提案しました。その後の打合せもご夫婦で意見が割れることもなくスムーズに進み、ご夫婦の見ている方向が一緒なのだなと感じました。やりたいことをひとつひとつカタチにした素敵な住まいを、これからもぜひ楽しんでください。

Movie

Voice

築年数が経過したマンションでもこだわりの空間を実現できました!

築40年以上経ったマンションは間仕切りが多く、最初は本当に好みの空間になるのだろうかと不安を感じていましたが、打ち合わせを重ねてヤマサリノベさんからさまざまな提案をもらい、細かいこだわりまで叶えてもらえました。
広い土間とウォークインクローゼット、キッチンカウンター、窓辺のベンチなど、決められた空間の中で自分たちの希望をたくさん詰め込めたのがとても良かったです。


Recent Case最新の施工事例