築18年 4LDK→2LDK 97.15㎡ 鹿児島市
  • マンション

桜島と図書コーナーのあるリノベ

After

Point

  • ワイドな対面キッチン

    存在感を放つワイドな対面キッチン。ここを中心に家族が自然とつながります。広い作業スペースや大容量の収納も備え、家事の効率アップも図りました。

  • 趣味を愉しむ図書コーナー

    リビングの一角に設けた図書コーナー。壁一面の本棚はリビング側から見えにくい仕様にして、すっきりとした印象に。本を片手にゆっくりとくつろげる空間です。

  • 広々とした玄関と実用的な土間空間

    玄関は土間スペースをつくり広々とした空間にしました。玄関ドアの前には収納を兼ねたベンチを造作、奥にはドライルームとフリースペースを設けて実用的な空間としました。

以前は下階の部屋に賃貸で暮らしていたご家族。住み慣れた地に自分たちの家を構えたいと、上階の部屋が売りに出たタイミングで購入して好みの空間にリノベーションすることにしました。
リノベーション会社を検討する中で、ヤマサリノベのモデルハウスの住み心地の良さやリノベーションに対する想いやこだわりに触れて、この会社なら信頼して任せられると確信したそう。それが決め手となり、ヤマサリノベでのリノベーションがスタートしました。

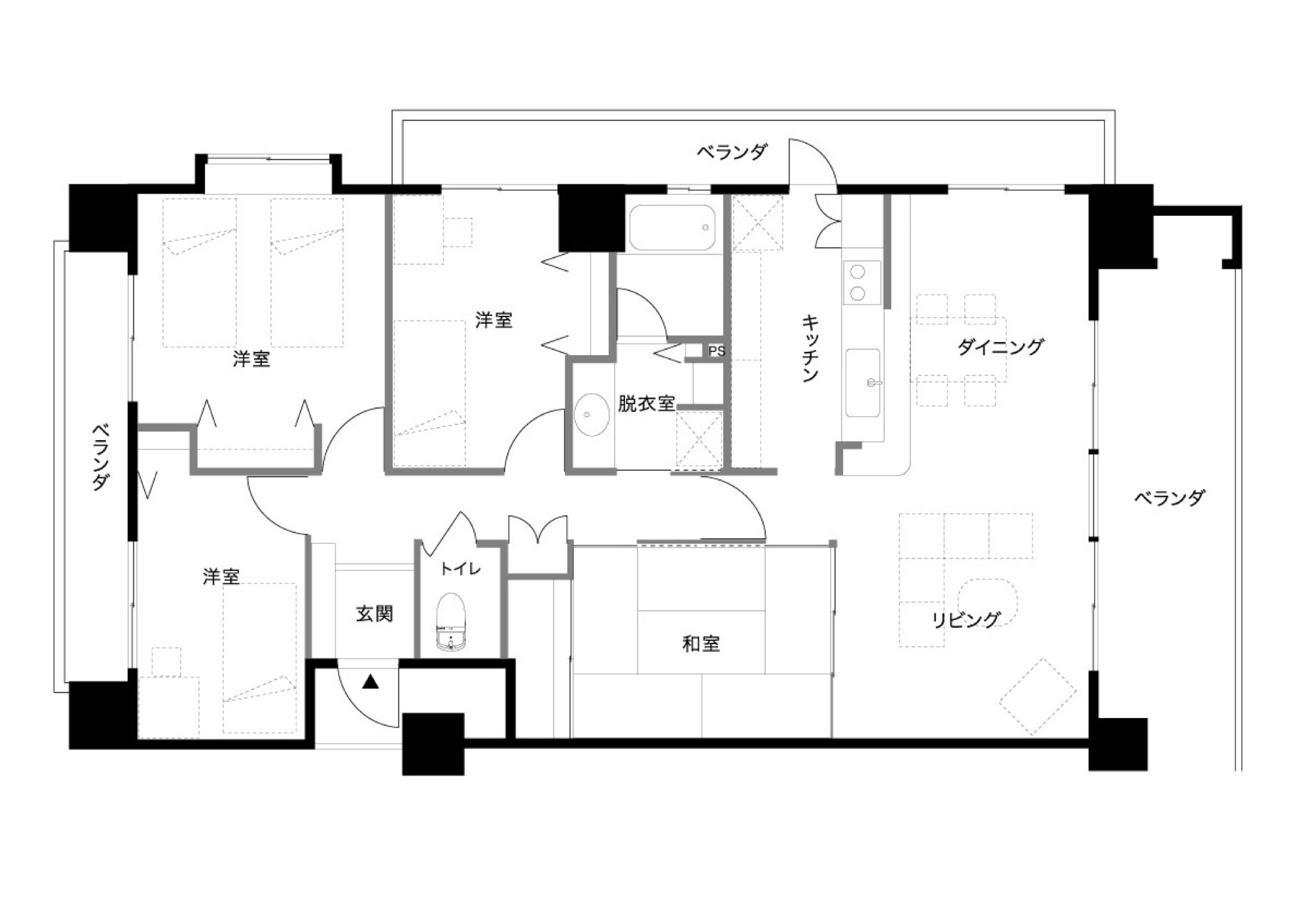
玄関は土間スペースを広げて収納付きベンチや室内干しスペースを配置。キッチンや水まわりの動線にもこだわり、短い動線で家事時短にもつながるように工夫しました。
大きな開口から柔らかな光が入るLDKは、窓越しには鹿児島のシンボル桜島を望め、「桜島を眺めながら暮らしたい」というご家族の夢が日常の景色に変わりました。LDKの一角に設けた大きな本棚のある図書コーナーは、本を読んだりお茶をしたり、多機能なスペースとして活躍します。
家族が自然と集いたくなる居心地の良い空間が完成しました。

担当者のコメント

家づくりについていつも一生懸命に考えてくださり、私たちも一緒に楽しく進めさせていただきました。収納が苦手とおっしゃっていたのですが、リノベーション後はいつも綺麗に片付けられており、お花など空間を飾るアイテムもいつも素敵で、快適に楽しんでくださっていることが伝わってきます。これからも引き続き楽しく住み続けてください。また遊びに参ります。

Voice

夢だった「桜島を望む暮らし」が手に入りました!

スタッフの皆さんが私たちの希望や意見を丁寧に聞いてくれて、質問に対してもすぐに対応してもらえました。
日当たりや風通しの良いLDKの窓からは桜島も見えて、夢だった暮らしが手に入りました。デザイン性も実用性もとても満足しています。


Recent Case最新の施工事例