築44年 5DK→3LDK 113.75㎡ 鹿児島市
  • 戸建て

祖父母の思い出とともに暮らす回遊動線のある住まい

After

Point

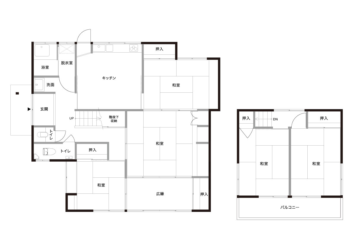
  • 階段下を有効活用した収納

    階段下のデッドスペースを有効活用し、扉付きの収納を設けました。パントリーとしてもリビング収納としても活用でき、必要なものをすっきりと整理整頓できます。限られたスペースを賢く使うことで、日々の暮らしを快適にサポートします。

  • 回遊動線で生活がしやすく

    玄関から洗面、ウォークインクローゼット、寝室、そしてLDKへとつながる回遊性のある間取りとしました。さらに、キッチンまわりも回遊できるレイアウトにすることで、双方向からアクセスが可能となり、家事効率が大幅に向上します。

  • メンテナンス性も高い新築同様の外観

    外観はグレーを基調とした新築同様のデザインに。屋根材や外壁材は耐久性が高く汚れが付きにくい素材を採用したことで、長く美しい状態を保ち、先々のメンテナンスコストも抑えます。

祖父母が住んでいた築40年以上の住まいを受け継ぎ、家族が快適に暮らせるようリノベーションしたご家族。当初は建て替えとリノベーションのどちらにするかで悩まれたそうですが、リノベーションでも新築同様の性能を実現できること、また建築費用を抑えられることからリノベーションを選択されました。
家族の思い出を大切にしながらも、基礎部分と柱のみを残して住まいを一新。リビングは家族がゆったりと過ごせる快適なスペースを確保。キッチンからも子どもの様子に目が届くレイアウトにしています。さらに回遊動線を取り入れたことで、家事がしやすく、1階で生活が完結する間取りを実現しました。
床には自然素材の無垢材を採用して、温もりあふれる心地よい空間に。祖父母の家にあった思い出の欄間は、階段に飾ってインテリアとして残しました。また、天候や降灰の影響を受けずに洗濯ができるドライスペース、トイレや階段下の収納スペースなど、日々の暮らしをより快適にする工夫も施し、のびのびとストレスなく暮らせる住まいが完成しました。

担当者のコメント

小さいころ兄弟で遊んでいた和室など、思い出のあるおじいさまの家をリノベ-ションさせていただきました。打合せ中に嬉しい報告もいただき、子育てに関するご相談もお受けさせていただいたことも印象的でした。新しい家族も増え、思い出を活かしながら新しくなった家で新しい暮らしを楽しんでいただければとても嬉しいです。

Movie

Voice

のびのびとストレスなく暮らせるようになりました。

さまざまな提案をしていただき、楽しい家づくりの時間を過ごせました。子どもの頃から慣れ親しんだ家が新しい形に変わる過程は感慨深かったです。
以前は、賃貸マンションに住んでいたので、子どもの泣き声が隣近所に響かないかと気にしながら生活をしていましたが、今はのびのびとストレスなく暮らせています。
最初はリフォームかリノベか新築かでいろいろと悩みましたが、リノベーションしてよかったと思います。あらためて家を残してくれた祖父母にも感謝でいっぱいです。


Recent Case最新の施工事例